Skip to content

Hsinchu Stone Village Masterplan
Hsinchu, Taiwan, 2011—2015

Hotel_view 01

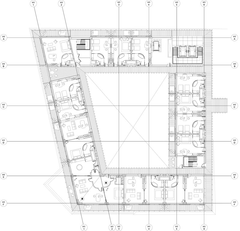
The Hsinchu Stone Village Resort Hotel forms part of our masterplan for the Hsinchu Stone Village in Taiwan. The hotel sits at the highest point of a new village, separated by a dramatic landscape. The proposal seeks to create a contemporary re-interpretation of a Chinese Hill Village formed from a series of courtyard buildings of varying scales. Four courtyards are connected by a series of walkways, bridges and courts.

Hinchsu-photos-029

The design works with traditional Chinese notions of entry, and subdivision of space. Landscape is integrated into the urban village setting, with the ravine forming the central spine through the centre of the village, with views out at either end. The hotel seeks to provide an environment with a close relationship to nature as an antidote to city life.

Mole-GBA-Hsinchu-Sketch-Masterplan-2
Mole-GBA-Hsinchu-Sketch-Masterplan-3
hillside-option-2
figure-ground-2
Hinchsu photos 060111 010
Hsinchu hotel model 210111 005
Hsinchu hotel model 210111 006
Hsinchu hotel model 210111 004
1
2
3
4
5
6
7
01
02
03
145_H_DD-620-Roof-Diagram
145_H_DD-612-Arch-Diagram
01
02
03-04
05-06
07-08
Hotel_view 12
Hotel_view 11
Hotel_view 09
Jpgs_Page_02
02
FINAL-DOCUMENT2-Presentation-10-2
01-H3-AA
02-H2-AA
03-H3-BB
04-H2-BB
05-H1-AA
145_X_Hotel_H1_Plan-126
DJI_0005

Breaking ground

Design Team

  • Gianni Botsford
  • Anahi Copponex
  • James Eagle
  • James Ford
  • Charlotte Khatso
  • Minghsuan Lo
  • Valle Medina
  • Yo Murata
  • Mike O’Hanlon
  • Lucia Pflucker
  • Shogo Sakimura
  • Hiroshi Takeyama
  • Geoff Whittaker
  • Rion Willard
  • Kriss Zilgalvis

Consultants

  • Mole Architects, Collaborative Architects
  • Arup, Environmental Engineer
  • Todd Longstaffe-Gowan Landscape Architects, Landscape Architect
  • R J Wu, Local Architects
  • Arup, Evergreen Consulting, Structural Engineer
  • Vizeviz, Visualiser