Whitfield Fine Art
London, UK, 2008—2010

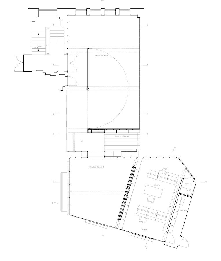
The gallery specialises in Old Masters and 20thCentury British Art. The brief called for a calm backdrop for the art in a series of connected gallery spaces, as well as associated back of house facilities including painting storage and administration offices.
Two galleries were required with flexibility for hanging at different scales. A large rotating wall was installed to redefine the main gallery as required, the second more intimate gallery provided private viewing space adjacent to the gallery offices.
